Добро пожаловать на http://vipplan.ru

Випплан Дзержинск - это тысячи проектов домов в нашем каталоге!

Вы всегда сможете найти для себя проект дома вашей мечты! Даже если этого не случилось, мы готовы в любую минуту предложить проект индивидуального дома.

Забыли пароль?
Вы еще не регистрировались?

Перейдите по ссылке ниже на страницу регистрации.

Регистрация...

Внимание!!!

В проектную документацию могут быть внесены изменения любой сложности, в соответствии в Вашими пожеланиями!

Полезные статьи

Типы и разновидности кровли

Кровля состоит из сплошного настила, стяжки и обрешетки, поддерживающих стропила и несколько слоев изоляции, призванных уберечь кровельное пространство от негативного воздействия пара и влаги....

Установка систем вентиляции

Проектирование и установка систем вентиляции начинается на этапе создания проекта дома, в котором, наряду с газо- и электрификацией, водоснабжением и системой канализации, проектируется система вентиляции...

Проекты домов и коттеджей > Каталог проектов домов > Одноэтажный дом с мансардой, гаражом и террасой Vg2300

Одноэтажный дом с мансардой, гаражом и террасой Vg2300

Одноэтажный дом с мансардой, гаражом и террасой
Зарегистрируйтесь

Проект № Vg2300


Техническое описание
Общая площадь: 184.56 м2
Жилая площадь: 87.83 м2
Высота здания: 9.45 м
Размеры дома: 9.94м×15.34м
Кол-во комнат: 5
Цокольный этаж: нет
Гараж: нет
Мансарда: есть

Kонструкция
Фундамент: Монолитная ж/б плита
Перекрытия: Монолитная ж/б плита
Материал стен: Кирпич

Архитектурный раздел
Конструктивный раздел
АР+КР - 60 000 (Со скидкой 20%)
Модель проекта индивидуального одноэтажного жилого дома с мансардой с размерами здания 9,94 x 13,34 м. Наружная отделка здания – облицовочный кирпич. Фундамент – монолитная ж/б плита. Наружные стены – забутовочный кирпич. Внутренние стены - забутовочный кирпич. Перегородки - газобетонные блоки. Пол 1 этажа - пол по монолитной плите. Межэтажное перекрытие - монолитная ж/б плита. Крыша двускатная. Кровля – металлочерепица. Окна — металлопластиковые.
Генплан застройки участка / Паспорт проекта 7000 руб / 10000 руб
Инженерный раздел (полный) 92500 руб
Смета на строительство 46250 руб
Теплотехнический расчет материалов стен Бесплатно
Стоимость проекта со незначительнми изменениями 70350 руб
Стоимость проекта со средними изменениями* 84300 руб
Стоимость проекта со значительными изменениями** 88000 руб

План первого этажа


Прихожая — 6,10 кв м
Холл — 11,08 кв м
Гостиная-столовая — 30,44 кв м
Кухня — 10,71 кв м
Кладовая — 2,05 кв м
С/у — 3,6 кв м
Бойлерная — 7,39 кв м
Кабинет — 10,25 кв м
Гараж — 20,77 кв м

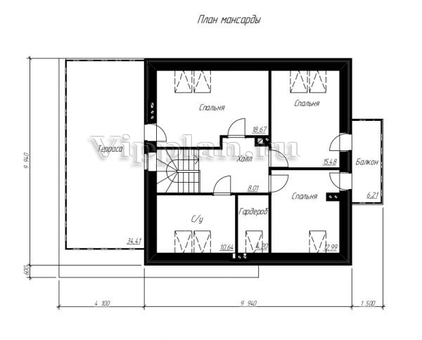
План мансардного этажа


Холл — 8,01 кв м
Спальня — 15,48 кв м
Спальня — 12,9 кв м
Спальня — 18,67 кв м
С/у — 10,64 кв м
Гардероб — 4,20 кв м
Терраса — 10,32 кв м
Балкон — 1,86 кв м
Одноэтажный дом с мансардой, гаражом и террасой Одноэтажный дом с мансардой, гаражом и террасой Одноэтажный дом с мансардой, гаражом и террасой Одноэтажный дом с мансардой, гаражом и террасой
Внесение изменений и привязка к участку строительства

В любой из проектов от компании VIPplan - Дзержинск по вашему желанию могут быть внесены изменения в материалы стен, материалы наружной отделки дома, а также будет произведена адаптация проекта под конкретный регион строительства (с учетом грунтов региона, геологических особенностей вашего участка и местных климатических условий) - БЕСПЛАТНО !!! (кроме проектов со скидкой и проектов наших партнеров).

Любой из проектов, размещенных на сайте dzerjinsk.vipplan.ru мы можем выполнить из требуемых вам строительных материалов: ячеистый бетон (газобетон, пеноблок), керамоблок, кирпич, шлакоблок, бетонный блок, дерево (брус, клееный брус), каркасная технология (деревянный каркас, металлокаркас (ЛСТК)).

Фасад дома и его наружную отделку так же возможно выполнить с применением различных облицовочных материалов: структурной штукатурки, (с утеплителем и без), сайдингом (пластиковый или металлосайдинг), фиброплитами, кирпича.

 
6 Избранные
проекты

Доставка проектов по России: Москва (Московская область), Санкт-Петербург (Ленинградская область), Краснодар, Ростов-на-Дону, Ставрополь, Сочи, Волгоград, Новосибирск, Белгород, Брянск, Воронеж, Саратов, Хабаровск, Астрахань, Нальчик, Владикавказ, Екатеринбург, Тюмень, Самара, Нижний Новгород, Казань, Пермь, Уфа, Челябинск, Красноярск, Ханты-Мансийск, Иркутск, Курган, Оренбург, Омск, Томск, Барнаул, Новокузнецк, Кемерово, Абакан, Чита, Якутск, Южно-Сахалинск, Петропавловск-Камчатский и страны ближнего зарубежья: Белоруссия, Украина, Казахстан